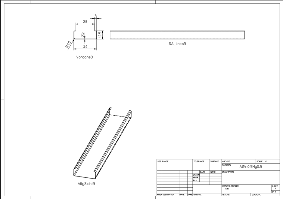
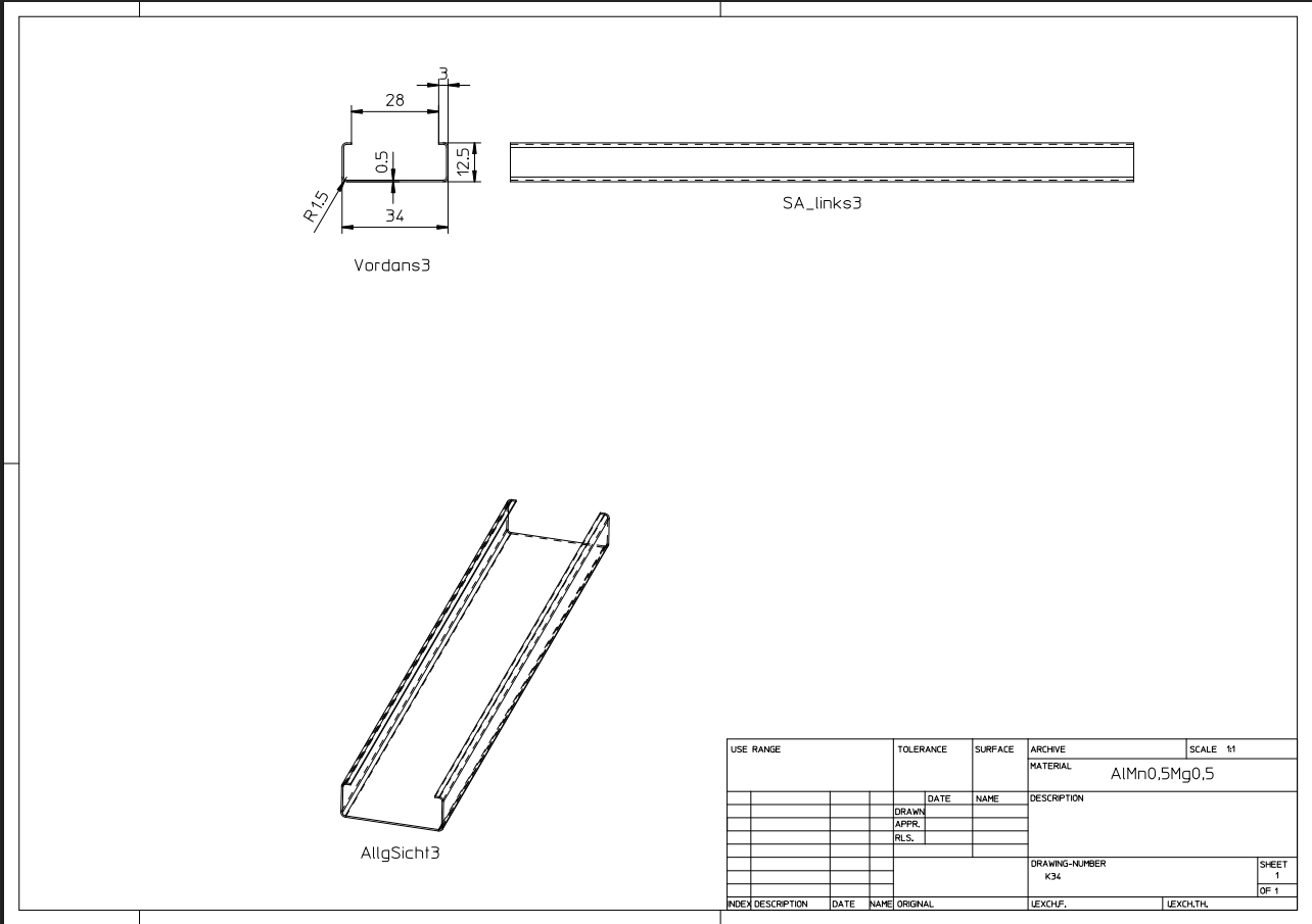
Die DOBNER GUTWERT GmbH gehört zur Unternehmensgruppe
BRF FRIEDRICHSHAIN GmbH und ist Hersteller der abgehängten
ORIGINAL DOBNER Metalldecken

Abgehängte ORIGINAL DOBNER Aluminium-Paneeldecke Typ K-34 / KP-34
mit offenen Fugen