Die DOBNER GUTWERT GmbH gehört zur Unternehmensgruppe
BRF FRIEDRICHSHAIN GmbH und ist Hersteller der abgehängten
ORIGINAL DOBNER Metalldecken

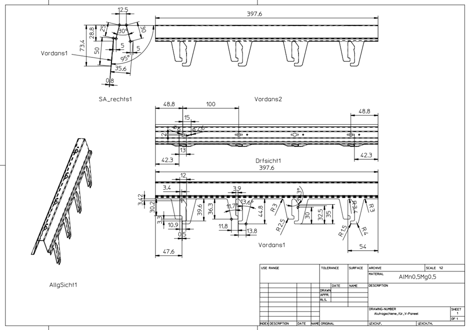
Tragschiene für die superleichten ORIGINAL DOBNER Aluminium-Vertikal-Lamellendecken